INGENIERÍA DEL TRANSPORTE
Detalles del Proyecto
- Cliente: SI.CO.GEN. S.r.l. - Empresa de construcción
- Ubicación: Provincia de Turín - Región de Piamonte
- Calendario: 2004-2005
- Inversión: € 10,400,000
- Actividades desarrolladas: Proyecto ejecutivo constructivo
Galería
Autopista Torino-Orbassano-Pinerolo - Segundo tramo, Lote 3.
Finalidad del Proyecto:
Dentro de los trabajos de construcción del trayecto de autopista ''Torino - Orbassano - Pinerolo'', ha sido nuestra sociedad la que ha desarrollado el proyecto ejecutivo constructivo de dicho tramo vial así como todas las obras de arte previstas.
El tramo de autopista realizado constituye el complemento del tramo preexistente, tiene una longitud total de 11.365 km y ha sido subdividido en tres lotes constructivos que han sido ejecutados contemporáneamente.
En este apartado se describen los trabajos realizados en el Lote número 3, el cual cuenta con un total de 2.950 km de longitud.
Descripción del Proyecto:
La obra de infraestructura realizada en este lote corresponde al enlace vial de ''Riva''. Está compuesto por una calzada con dos carriles de marcha para los vehículos en salida e igual número de carriles para los vehículos que acceden a la autopista.
Las relativas rampas de conexión se acoplan a una gran rotonda construida a una cuota inferior respecto a la autopista, lo cual permite conectar el anterior sistema vial.
Por lo tanto se realizaron cuatro pasos a desnivel en la autopista mediante la construcción de puentes.
Cada paso a desnivel se caracteriza por tener tres tramos de luces entre ejes de los apoyos de 15 m, 25 m y 15 m respectivamente de longitud. El tramo central, de mayor longitud, es aquel que hace posible el cruce de la plataforma vial de la rotonda bajo la autopista, mientras en los tramos laterales se realizaron los respectivos terraplenes viales con pendientes de 2/3.
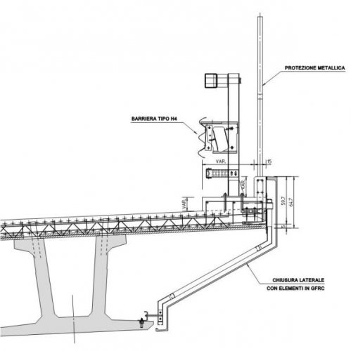
El tablero de los pasos desnivelados está constituido por cinco vigas prefabricadas en hormigón armado pretensado sobre las cuales se ha realizado una losa hecha en obra. Las losas de los diferentes tramos se conectaron entre ellas creando un sistema constructivo llamado ''a cadena cinemática'', que permite evitar las juntas de dilatación directamente sobre las pilas.
Estribos y pilas se realizaron en hormigón armado. Las fundaciones son de tipo directo.
Dentro de los trabajos de construcción del trayecto de autopista ''Torino - Orbassano - Pinerolo'', ha sido nuestra sociedad la que ha desarrollado el proyecto ejecutivo constructivo de dicho tramo vial así como todas las obras de arte previstas.
El tramo de autopista realizado constituye el complemento del tramo preexistente, tiene una longitud total de 11.365 km y ha sido subdividido en tres lotes constructivos que han sido ejecutados contemporáneamente.
En este apartado se describen los trabajos realizados en el Lote número 3, el cual cuenta con un total de 2.950 km de longitud.
Descripción del Proyecto:
La obra de infraestructura realizada en este lote corresponde al enlace vial de ''Riva''. Está compuesto por una calzada con dos carriles de marcha para los vehículos en salida e igual número de carriles para los vehículos que acceden a la autopista.
Las relativas rampas de conexión se acoplan a una gran rotonda construida a una cuota inferior respecto a la autopista, lo cual permite conectar el anterior sistema vial.
Por lo tanto se realizaron cuatro pasos a desnivel en la autopista mediante la construcción de puentes.
Cada paso a desnivel se caracteriza por tener tres tramos de luces entre ejes de los apoyos de 15 m, 25 m y 15 m respectivamente de longitud. El tramo central, de mayor longitud, es aquel que hace posible el cruce de la plataforma vial de la rotonda bajo la autopista, mientras en los tramos laterales se realizaron los respectivos terraplenes viales con pendientes de 2/3.
El tablero de los pasos desnivelados está constituido por cinco vigas prefabricadas en hormigón armado pretensado sobre las cuales se ha realizado una losa hecha en obra. Las losas de los diferentes tramos se conectaron entre ellas creando un sistema constructivo llamado ''a cadena cinemática'', que permite evitar las juntas de dilatación directamente sobre las pilas.
Estribos y pilas se realizaron en hormigón armado. Las fundaciones son de tipo directo.



















