SUPERVISIÓN DE OBRAS CIVILES
Detalles del Proyecto
- Cliente: Comunidad Montana Val Polcevera
- Ubicación: Comuna de Campomorone (GE) - Región de Liguria
- Calendario: 2002-2004
- Inversión: € 900,000
- Partner: S.G.G. S.n.c. (geología)
- Actividades desarrolladas: Proyecto definitivo, ejecutivo y dirección de las obras
Galería
Intervenciones para mitigar la vulnerabilidad de varios edificios que se encuentran en la localidad Isoverde en la Comuna de Campomorone (GE), a causa de factores hidrogeológicos.
Finalidad del Proyecto:
El objetivo del proyecto fue garantizar la seguridad de los edificios cuya estabilidad estaba condicionada por una compleja situación de amenaza por factores hidrogeológicos.
Esta situación de amenaza se generaba por una condición geológica y ambiental muy particular; el terreno de fundación de los edificios en el entorno de la obra estaba caracterizado por la presencia de un estrato de material de relleno y/o sedimentario, compuesto por yeso y que en el pasado fue objeto de extracción en el subterráneo. La cavidad ha sido cultivada mediante una serie de pozos y de corredores subterráneos que atraviesan incluso el lecho del río torrentoso.
En el lecho del río existía una especie de ''sumidero natural'', en el cual confluían una importante parte de las aguas de escorrentía que iban a llegar al interior de las cavidades gracias a la disolución de la formación de yeso. Cerca a los edificios se había verificado la aparición de hoyos debidos al desprendimiento del terreno que cubre el interior de la cavidad.
El principal objetivo de las intervenciones de mitigación del riesgo a causa de factores hidrogeológicos, fue la de eliminar, o en la medida de lo posible, reducir casi totalmente la infiltración del agua en el subsuelo para evitar que puedan suceder mayores problemas en términos de erosión y socavación.
Descripción del Proyecto:
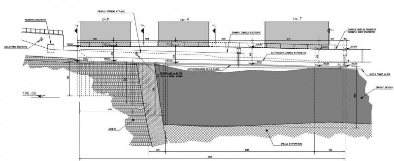
En síntesis, la intervención consistió en la creación de una serie de columnas impermeables (o de muy baja permeabilidad) hincadas a una profundidad de 16 metros por debajo del lecho del río y que sobrepasa la zona donde se encuentran las cavidades. La serie de columnas crean prácticamente una pantalla impermeable cuya parte principal se ubicó a lo largo de la margen izquierda del río y sobre ésta se construyó un muro de contención en hormigón armado.
La anterior pantalla se ha integrado a otras tres pantallas ortogonales creando de esta manera un compartimento de terreno con la garantía que se intercepten todos las filtraciones de agua subterránea. Creada esta interceptación, se procedió luego al taponamiento de las cavidades con hormigón y la inyección de una mezcla de cemento - lodo bentonítico.
Finalmente el lecho del torrente fue revestido con hormigón y rocas, buscando siempre reducir cualquier posibilidad de infiltración del agua en el subterráneo.
Durante el estudio preliminar y la ejecución de las obras, fue dispuesta en obra una red de monitoreo para evaluar en todo momento la estabilidad de los edificios en la zona.
El objetivo del proyecto fue garantizar la seguridad de los edificios cuya estabilidad estaba condicionada por una compleja situación de amenaza por factores hidrogeológicos.
Esta situación de amenaza se generaba por una condición geológica y ambiental muy particular; el terreno de fundación de los edificios en el entorno de la obra estaba caracterizado por la presencia de un estrato de material de relleno y/o sedimentario, compuesto por yeso y que en el pasado fue objeto de extracción en el subterráneo. La cavidad ha sido cultivada mediante una serie de pozos y de corredores subterráneos que atraviesan incluso el lecho del río torrentoso.
En el lecho del río existía una especie de ''sumidero natural'', en el cual confluían una importante parte de las aguas de escorrentía que iban a llegar al interior de las cavidades gracias a la disolución de la formación de yeso. Cerca a los edificios se había verificado la aparición de hoyos debidos al desprendimiento del terreno que cubre el interior de la cavidad.
El principal objetivo de las intervenciones de mitigación del riesgo a causa de factores hidrogeológicos, fue la de eliminar, o en la medida de lo posible, reducir casi totalmente la infiltración del agua en el subsuelo para evitar que puedan suceder mayores problemas en términos de erosión y socavación.
Descripción del Proyecto:
En síntesis, la intervención consistió en la creación de una serie de columnas impermeables (o de muy baja permeabilidad) hincadas a una profundidad de 16 metros por debajo del lecho del río y que sobrepasa la zona donde se encuentran las cavidades. La serie de columnas crean prácticamente una pantalla impermeable cuya parte principal se ubicó a lo largo de la margen izquierda del río y sobre ésta se construyó un muro de contención en hormigón armado.
La anterior pantalla se ha integrado a otras tres pantallas ortogonales creando de esta manera un compartimento de terreno con la garantía que se intercepten todos las filtraciones de agua subterránea. Creada esta interceptación, se procedió luego al taponamiento de las cavidades con hormigón y la inyección de una mezcla de cemento - lodo bentonítico.
Finalmente el lecho del torrente fue revestido con hormigón y rocas, buscando siempre reducir cualquier posibilidad de infiltración del agua en el subterráneo.
Durante el estudio preliminar y la ejecución de las obras, fue dispuesta en obra una red de monitoreo para evaluar en todo momento la estabilidad de los edificios en la zona.





















